一、非金属链条刮泥机
1)技术性能
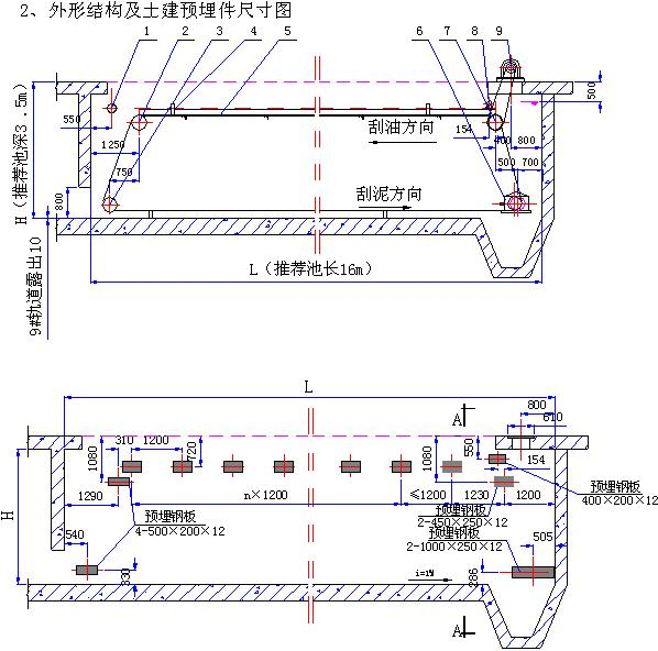
非金属链条刮泥机用于沉淀池底部刮泥操作,包括主机、驱动电机、控制柜及其附属设备等,应满足《环境保护产品技术要求刮泥机》(HJ/T265-2016)的要求。
刮泥机应能每天24hr连续循环运行,刮泥速度应不大于0.6m/min,单机功率不大于0.75kw,且不得影响沉淀污泥的有效刮除。每台刮泥机自带控制箱,其运行将采用就地和远程控制。
供货商应计算刮泥机的刮泥能力、刮板间隔、牵引链的张紧力,保证不会发生牵引链松弛造成脱链的措施。
设备无故障运行时间不少于50000小时,整机使用寿命在20年以上。
二、构造与材质
非金属链条刮泥机,位于水下部分的主要机件均为非金属材料制造,材质为:
1)驱动装置
刮泥机驱动装置应采用国际知名品牌直联摆线减速电机,全封闭,油传动并全部为耐磨轴承输出。驱动装置应由专业制造商在制造厂内完整组装并完整运到现场以保证所有部件的完整和良好的装配。
驱动链应采用增强尼龙,工作荷载对破坏强度的安全系数≥4。
驱动电机适用于恒速,大载荷起动。在正常操作条件下,连续驱动设备不会过载。电机为IEC标准,电压380V、3相、50HZ,防护等级为IP55,绝缘F级。
减速箱的齿轮设计应符合ISO或同类标准,服务系数不少于2.0,轴承寿命(LIO)≥100000小时,齿面硬度不低于HRc58。
2)刮泥板链条
刮泥板链条采用玻璃纤维增强工程塑料制造,链条的允许工作荷载≥2000kgf,保证强度≥2700kgf,破坏强度应大于3800kgf。
链节形式为板式链的形式,整体注塑成形或组合型式,销轴孔和加肋侧板必须精密塑造,保证精度。
板式链的滚筒表面应具有足够的硬度,在正常运转条件下,节距的延伸量不大于0.5%。在设计工况下保证
链节的连续工作寿命大于10年。
牵引链拉紧后,二支承点间的弧垂度应小于1/50支承点距离,链节破断强度至少应大于链条张紧力的6倍。
3)刮泥板
刮泥板应由加强型玻璃钢制成,其中玻璃纤维含量不低于65%。
刮板应具有足够的强度和刚度,允许挠度不大于1/1000。



